Проектирование вентиляции и кондиционирования в кафе и ресторанах

Заказать проект


Кондиционирование и вентиляция в кафе Заведения общественного питания требуют особого внимания к системе вентиляции. В таких помещениях имеются несколько отдельных зон, из которых наиболее важны кухня и залы для посетителей.

Компания «Московский Инжиниринговый Центр» разрабатывает проекты вентиляции для каждого помещения в соответствии с требованиями законодательства, а также предоставляет все необходимое оборудование.

В залах для гостей требуется постоянное обновление воздуха, обеспечивающееся хорошей вентиляцией приточного типа. В производственной зоне требуются мощные вытяжки для устранения загрязненного воздуха. Для заведений, рассчитанных не более чем на 50 гостей, допускается проектирование приточной вентиляции для обеденного зала и горячего цеха.

Для больших заведений требуется отдельная вентиляция для следующих зон:

  • залы для приема пищи гостями заведения;
  • цеха для приготовления горячей пищи и мойки посуды;
  • производственная и административная зона;
  • санузлы;
  • охлаждаемые комнаты, в которых хранятся свежие продукты;
  • комнаты для хранения отходов с соответствующим охлаждением.

Как рассчитывается воздухообмен

Согласно пособию от 01.01.92 года №2.08.02-89 к СНиП «Проектирование предприятий общественного питания», для расчета объема поступающего чистого воздуха используются такие нормы:

  • на работника предприятия полагается приток свежего воздуха не менее 60 кубометров в час;
  • на каждого гостя – 30 кубометров в час;
  • при разрешенном курении внутри кафе или ресторана, на каждого посетителя полагается воздухообмен в объеме не менее 100-120 кубометров в час.

Компания «Московский Инжиниринговый Центр» предлагает следующее оборудование для вентиляции предприятий общественного питания:

  • приточно-вытяжная техника Dantex, Breezart, Systemair;
  • техника для кондиционирования воздуха Toshiba, Dantex, Trane и т.п.

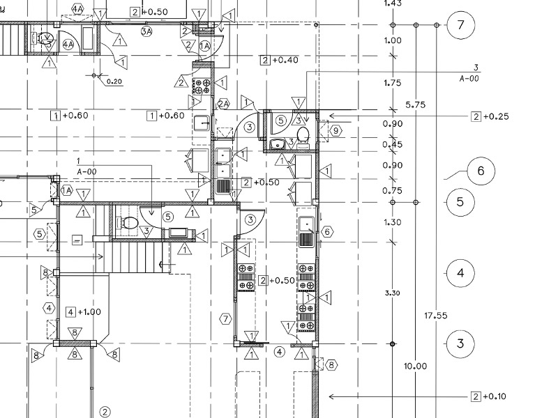
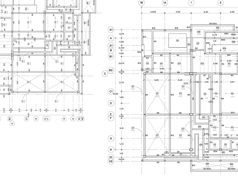
Примеры системы вентиляции и кондиционирования в кафе


Заказать проект вентиляции кафе или ресторана


Менеджеры нашей компании всегда готовы ответить на Ваши вопросы.
Заказать проект вентиляции Вы можете несколькими способами:
  • По телефону: +7 (495) 916-52-14
  • Отправить письмо в проектный отдел на e-mail: po@mosng.ru
  • Отправить заявку на сайте

Заказать проект