Вентиляция коттеджей и загородных домов

Заказать проект


Частный дом Требования к проектированию и установке вентиляционных систем в коттеджах и любых отдельностоящих частных домах существенно отличаются от аналогичных правил для квартир. Их главная особенность заключается в наличии большого количества помещений, как жилых, так и дополнительных (бассейн, сауна, бойлерная и т.п.). Наличие камина также накладывает свои ограничения.

В зависимости от назначения той или иной зоны, для нее применяются свои рекомендации к установке вентиляционных систем. К примеру, для жилых помещений в коттедже можно выбрать приточную вентиляцию, дополненную охладителем, или оборудовать самостоятельную систему кондиционирования. В любом случае, весь поступающий воздух будет дополнительно охлаждаться.

Технические помещения, например, санузел или гараж, требуют установки вытяжной вентиляции, которая будет быстро выводить загрязненный воздух. Приточно-вытяжная система с рекуперацией воздуха (подогревом поступающего потока воздуха за счет тепла выводимого) позволит не только полноценно контролировать микроклимат, но и сократить расходы на отопление.

Техника для систем вентиляции коттеджей

«Московский Инжиниринговый Центр» предлагает следующие варианты оборудования и сопутствующих товаров для вентиляции загородных домов:

  • мощные приточно-вытяжные системы (Breezart 1000, 2000 и аналоги);
  • паровые увлажнители Carel;
  • воздуховоды, оснащенные дополнительной теплоизоляцией;
  • декоративные панели и т.п.

Нормы вентиляции воздуха регламентируются СНиП 31-02-2001 «Дома жилые одноквартирные».

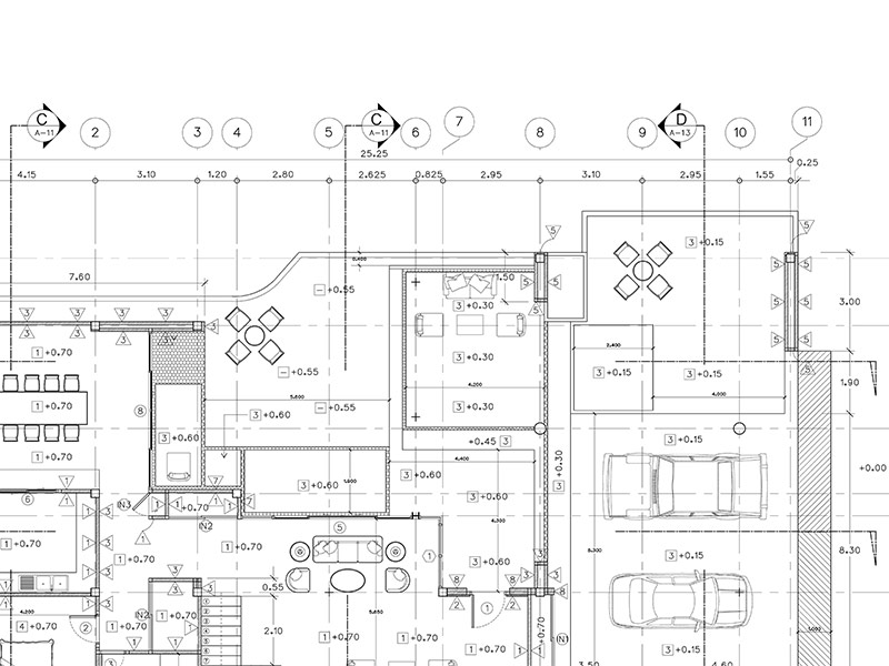
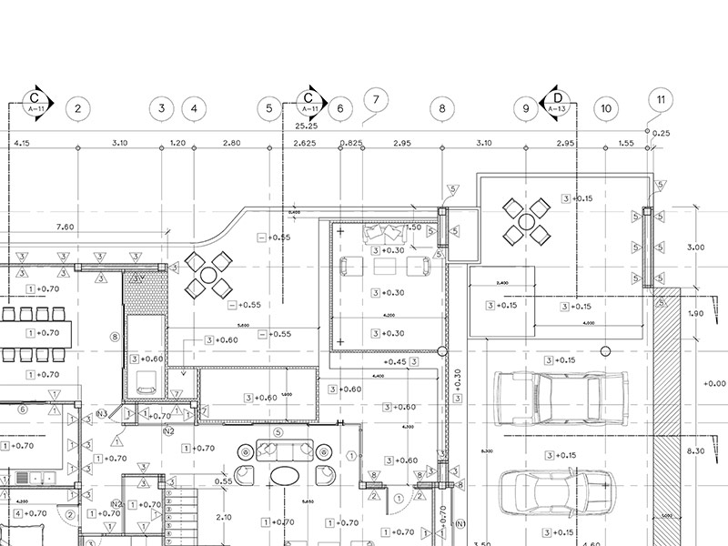
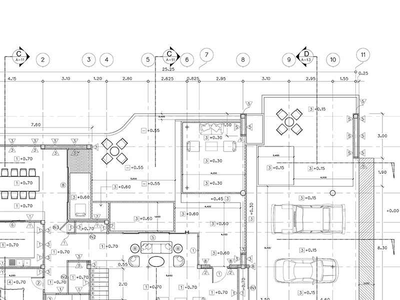
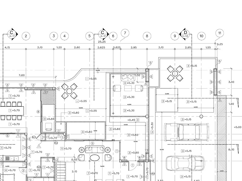
Примеры реализованных проектов вентиляции в домах и коттеджах


Заказать проект вентиляции коттеджа


Менеджеры нашей компании всегда готовы ответить на Ваши вопросы.
Заказать проект вентиляции Вы можете несколькими способами:
  • По телефону: +7 (495) 916-52-14
  • Отправить письмо в проектный отдел на e-mail: po@mosng.ru
  • Отправить заявку на сайте

Заказать проект