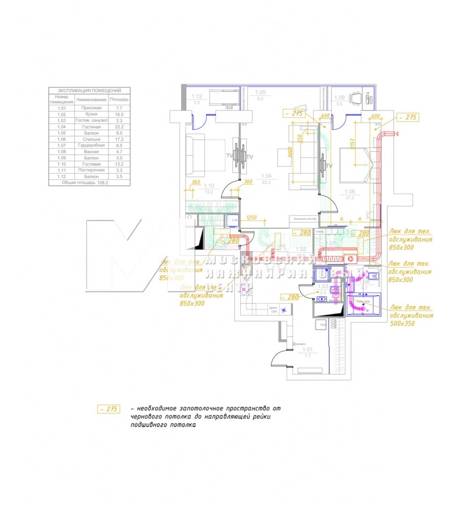
На объекте установлено:
- Канальная инверторная мультисплит-система кондиционирования Toshiba, состоящая из одного внешнего блока RAS-4M27GAV-E и трех внутренних компактных канальных блоков: RAS-M10GDV-E – 2 шт и RAS-M16GDV-E – 1 шт.
- Приточно-вытяжная система вентиляции с автоматикой, реализованная с помощью приточной установки Breezart 550 Lux с электрическим нагревателем, канального вентилятора LPK-125A, шумоглушителей ШТК 160/1000 и ШТК 125/1000, системы воздуховодов (жестких и гибких) и воздухораспределительных устройств.







