Каминная топка MCZ Forma 115
Описание
Горизонтальная каминная топка Forma 115 одинаково удачно может быть использована в пристенных и встроенных каминах. Горизонтальное расположение камеры позволяет удобно закладывать дрова в топку и увеличивает вид огня. Для модели Forma 115 характерно использование не только естественной конвекции, но и уникальной разработки компании – системы Comfort Air для равномерного распределения нагретого воздуха даже в помещениях соседних уровней. дровяная печь камин Forma 115 предназначена также для помещений большой площади. Топка Forma 115 характеризуется уникальным внутренним покрытием, также авторской разработкой компании MCZ, предохраняющим ее от перегрева и самоочищающимся от нагара.
Подробности о системе воздухопровода Comfort Air Вы можете узнать из нашей статьи
Конструкция
Forma 115 представляет собой встраиваемую модель каминной топки, дверца которой, изготовленная из огнеупорного стекла, открывается под углом 45градусов. Конструкция отличается оригинальными пропорциями топки, позволяющими организовать панорамный вид огня. Особого внимания в Forma 115 заслуживает равномерное горение дров по всей ширине, которое возможно благодаря специальной системе подачи воздуха по периметру топки.
Отличительные особенности
-
Forma 115 изготовлена из огнеупорной стали и жаропрочного стекла
-
внутренняя поверхность топки покрыта уникальной футеровкой – материалом Alutec, разработанным компанией MCZ
-
Forma 115 имеет дополнительное оснащение системой "Комфортный воздух"
-
термокамин предназначен для различных видов облицовки
Функциональные особенности
-
подача воздуха по периметру топки
-
Forma 115 оснащена системой «чистое стекло»
-
Топка оборудована системой контроля горения и вторичного дожига
Применение
Вытянутая по горизонтали конструкция каминной топки Forma 115 очень эффектно выглядит в оформлении любого интерьера. В настоящее время дровяные камины купить не составляет труда, нужно только определиться с требующейся мощность и размерами, а также выбрать понравившийся дизайн.
Особенности установки и эксплуатации
Установка и эксплуатация топки Forma 115 осуществляется соответственно правилам производства работ, ремонта печей и дымовых каналов, а также правилам пожарной безопасности и руководству пользователя.
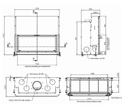
Габариты MCZ Forma 115

К данной топке подходят дымоходы Schiedel
Гарантия на дымоходы 30 лет!*
*Обратите внимание, что "Московский Инжиниринговый Центр" - один из немногих официальных дилеров Schiedel, который регистрирует смонтированный дымоход непосредственно у производителя. Только в этом случае действует 30-летняя гарантия!























