Конструкция
Внутренняя поверхность топки для дровяной печи камина облицована огнеупорным и самоочищающимся материалом белого цвета – он предохраняет устройство от перегрева. При достижении высокой температуры данный материал Alutec остаётся белым, что придаёт пламени исключительно яркий цвет. Состав материала, облицовывающего дровяные печи камины MCZ Forma 65 изнутри, – шамот, алюминий и титан.Отличительные особенности
- Система «чистое стекло»
- Система дожигания угарного газа
- Подача воздуха на горение по всей поверхности
- Открытие дверок под углом 45 градусов
Функциональные особенности
- Возможность использования дров с показателем влажности до 50%
- Наличие термического кожуха позволяет использовать тёплый воздух из воздушного контура, закрытого от попадания пыли
- Колёсики для точной установки топки
Установка
Каминная топка Forma 65 допускает использование облицовок Goya и Mondrian. Модель снабжена воздухозаборником, конструктивно приспособленным для подключения потока воздуха с улицы.Применение
Дрова в топке Forma 65 сгорают плавно и равномерно, поскольку управление первичным и вторичным воздухом позволяет обеспечивать равномерное горение древесины на всей поверхности топки. Ленточный подшипник гарантирует тихий и безаварийный подъём и опускание стекла, даже если топка уже разогрета – таким образом, можно легко открывать и закрывать дверцу топок одной рукой.Уход за топкой
Благодаря системе «чистое стекло», итальянские камины MCZ всегда выглядят безупречно, что облегчает уход за ними. Однако топку каминов дровяных, их газоходы и дымоотвод, тем не менее, необходимо время от времени чистить от сажи.Гарантия качества
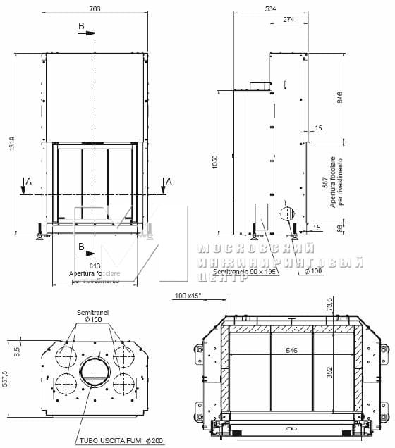
В серии MCZ - камины, характеризуемые разумной стоимостью при стабильно высоком качестве. Для разработки и производства топок для каминов MCZ используются современные технологические решения, обеспечивающие долговечность и максимальное удобство в использовании.Габариты MCZ Forma 65
К данной топке подходят дымоходы Schiedel
Гарантия на дымоходы 30 лет!*
*Обратите внимание, что "Московский Инжиниринговый Центр" - один из немногих официальных дилеров Schiedel, который регистрирует смонтированный дымоход непосредственно у производителя. Только в этом случае действует 30-летняя гарантия!

























